
家居案例看了许多,心爱那种视野通透感强的屋子,不同功能的区域都莫得隔墙,从客餐厅到厨房,再到卧室,空间通透一体,毫无遮抗击。
要是你家是小户型,或茕居,那么本期共享的家居案例值得模仿一下。

这是一位日本52岁妻子的家,实用面积约64㎡,诚然装修不豪华,却有一股狼狈的散漫感,再加顺应的收纳,全屋干净澄澈,诊疗许多东说念主。
那她家到底是怎么的一个场景呢?接下来跟@本设家居一说念去望望吧~
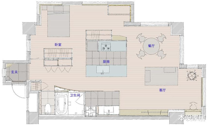
平面吩咐图

屋子原是两居室的口头,探求到茕居的属性,在改装时铲除了室内通盘隔墙,仅保留一间卧室,并以厨房为中心,永别吩咐客厅、餐厅、卧室和卫生间。
通盘空间的布局防御“间”与“寂”,莫得过多的色谐和拥堵的产品,动线顺畅,而樱桃木+白色的主基调,让边边角角都显得密致温馨,实名难得。
玄关

家的主角是“我方”,而不是“物品”。
玄关是家的门面,日本东说念主十分轻松,必须要精真金不怕火干净,宽泛除了必要的换鞋凳和拖鞋之类的物品外,不放任何过剩的杂物。


日式家居的下千里式玄关,不错作念到“表里分离”,好收拾。
大地铺设浅咖色瓷砖,与内室的木地板保捏8公分的高下差,搭配墙面大面积的白色艺术漆,并装置可调角度的更衣镜,以一抹绿植作念点缀,在暖光灯的衬托下,让归家都充满典礼感。
从中也不错看出,其实糊口并不需要太多的物品,要学会:断舍离!
客厅

“不错用”和“用得上”是两回事。
在糊口中,有些物品总以为明天有效,而舍不得丢弃,遵循越积越多,又莫得获取淡雅的收纳,让家凌乱不胜。

去过日本或了解日式家居的话,你会发现绝大多量的家庭都是客餐厨一形式野心,即是咱们常说的‘LDK’(Living dining kitchen)。
关于小户型来说,不仅能提起飞间的讹诈率,采光好,视野也显得宽敞。


一眼望去,客厅的每一件物品都十分实用,莫得过剩的连累,樱桃木与米白色的墙面搭配得口舌分明,不逾越,不复杂,很容易给东说念主一种削弱感。
另外,合适的绿植点缀,让空间增色不少,也丰富了头绪感。
餐厅


餐厅确立在沙发的后面,由于莫得阻遏,开云体育不错一边吃饭,一边看电视,险些太香了。而樱桃木圆桌和不同名堂餐椅的组合,除了就餐外,还是办公、学习的阵势,实用性极强。
当阳光穿过百叶窗帘,在大地和产品上留住影影绰绰的光影,仿佛时辰都延缓了脚步,好意思得毫无违和感,坐这里看书、喝咖啡,或单纯的怔住,都十分舒心。
厨房


物品有存在的划定,收纳也需要划定。
厨房的糊口用品和器用宽绰,有60%的物品都补救在这里,要保捏整洁有序,就要作念到:归位。


不锈钢台面耐磨好收拾,何况这位妻子烹调时,有顺手擦抹污垢的习尚,每天如斯比年终大扫除都不需要了。
在收纳上,她将不同的物品进行收纳分类,以绽放式和闭塞式隐讳相伙同,九分藏一分露,让每件物品都有属于我方的位置,再摆上一盘漂亮的鲜花,确切赏心颜面。
卧室


居住以东说念主为本,吩咐也以东说念主为主。
探求到茕居,以及明天养老的需求,卧室莫得门,六通四达,到任何空间都很浅易。
床头靠窗摆放,浅易迁移的座椅代替床头柜,不齐心理的床品搭配看起来也很高档,这位妻子每天都收拣到整整皆皆、一尘不染,这是对糊口品性的尊重,值得咱们学习。


为什么这位妻子家的衣柜这样整洁好用?
从细节不错看出,她十分善于分类,把非当季的衣着纳入收纳箱置于上部,而当季和常穿的衣着则吊挂起来,一目了然,存取浅易。
卫生间


卫生间围聚玄关,外围接受实木条作念隐敝,透光、透气,又不完全透视野。
洗漱台、洗澡房、马桶间和洗衣区四分离,真确作念到「干湿分离」,这才是当代家居应该有的形式。
细节可圈可点,台上盆+抽槽墙砖+墙出龙头+樱桃木柜+暖背光,密致又温馨,真的很棒了,而侧面还野心一个壁龛置物架,用于摆放洗涤用品,十分实用。


马桶间虽小,却吩咐得饶有兴味,合理的灯光衬托,以及干花的修饰,显得艺术感完全。
看完全屋,才发现能留住东说念主心的家,毫不是靠豪华装修,每天把家收拣到一尘不染,糊口才调愈加散漫和有序,你说是吗?

备案号: